Paradise Skillion
Starting From $ 200,000
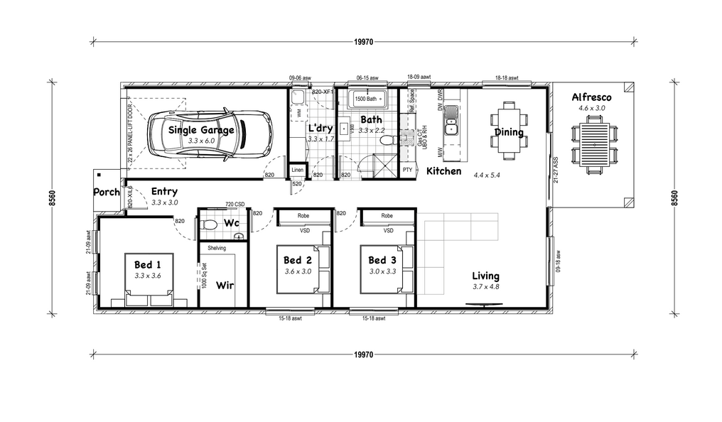
Design:
The "Paradise Skillion" is perfect for those who enjoy a relaxed, comfortable lifestyle with a modern twist. With its blend of open-plan living, a practical alfresco, and private bedroom spaces, it’s a great choice for families or couples. The design combines stylish features with functionality, creating a home that’s suited to contemporary living.
Specs
3 Bedrooms
1 Parking
1.5 Bathrooms
1 Living
Living 118.4m2 Alfresco 14.1m2
- Garage 22.1m2Porch 1.6m2
Exterior Design:
The "Paradise Skillion" exterior is designed with modern flair, featuring a skillion roofline that adds a unique touch to the overall look. Neutral brickwork and sleek cladding enhance the façade, offering a stylish, low-maintenance finish. The single garage is seamlessly integrated into the design, providing convenience and kerb appeal.
Interior Layout - Open Plan Living and Private Spaces:
The "Paradise Skillion" layout is crafted for easy, modern living, with open spaces for family time and private zones when you need a quiet retreat.
- Entry (3.3 x 3.0 metres): A welcoming entryway flows smoothly into the main living areas, making the home feel open and connected from the moment you step inside.
- Living Area (3.7 x 4.8 metres): Positioned towards the back, the living area is spacious and connects effortlessly to the dining and kitchen, ideal for family gatherings or relaxed evenings in.
- Dining Area (4.6 x 3.0 metres): Located next to the kitchen, the dining area is a perfect space for meals and leads directly to the alfresco, encouraging an easy indoor-outdoor lifestyle.
- Kitchen (4.4 x 5.4 metres): With ample bench space and storage, the kitchen is designed for functionality and style, keeping everything within reach while remaining open to the rest of the living areas.
- Alfresco (4.6 x 3.0 metres): The alfresco area extends the dining space outdoors, ideal for entertaining or enjoying a peaceful meal in the fresh air.
Bedrooms and Private Spaces:
The "Paradise Skillion" places its bedrooms in a quiet wing of the home, providing a peaceful retreat from the main living areas.
- Bedroom 1 (3.3 x 6.0 metres): The single garage provides secure parking with convenient internal access, simplifying daily tasks and unloading.
- Bedroom 2 ((3.6 x 3.0 metres) and Bedroom 3 (3.0 x 3.3 metres): Both secondary bedrooms are located near the bathroom and come with built-in robes, making them ideal for kids, guests, or a home office.
Additional Features:
- Single Garage (3.3 x 6.0 metres): The single garage provides secure parking with convenient internal access, simplifying daily tasks and unloading.
- Laundry (3.3 x 1.7 metres): Situated near the garage and bathroom, the laundry is compact yet practical, with ample space for household chores.
- Bathroom and Separate WC The main bathroom is central to the bedrooms and includes a separate WC, enhancing convenience for family and guests.
Efficient Use of Space:
The "Paradise Skillion" maximises every square metre, creating a balance between shared spaces and private retreats. The open-plan design in the living areas offers a sense of spaciousness, while the bedroom wing provides a quiet escape.



